Hliníkové zárubně do roviny stěny model KSS

Hliníkové zárubně do roviny stěny model KSS určené pro sádrokartonové a zděné příčky.

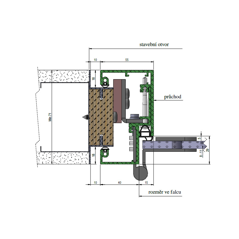
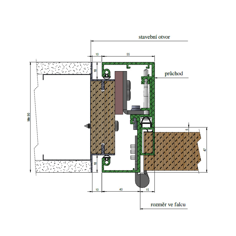
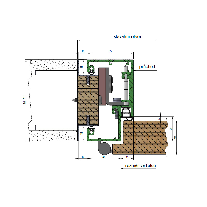
Model KSS vyniká svým provedením podobným obložkové zárubni, ale je určen pro montáž do roviny stěny s přiznanou stínovou drážkou v šíři cca 10 mm. Jejích tloušťku vždy vyrábíme na míru dané síle ostění. Taktéž rozměr zárubně je vždy vyráběn na míru. U tohoto modelu není možné kompenzovat sílu stěny popř. nerovnosti. Zárubeň je dodávaná jako vícedílná. Skládá se z podkladní zárubně, která je vyrobena z OSB desky s ukončovacím hliníkovým profilem. Celá tato podkladní zárubeň je určena k zabudování a následnému stavebnímu zapravení. Instalaci finální hliníkové zárubně KSS doporučujeme montovat po dokončení stavebních prací a pokládce finální podlahy.

Daný typ zárubní umožňuje osazení pantů z řady V8... , VX, VN, A23 a skrytých pantů ze série Tectus a dalších. Možná hloubka falcu zárubní modelu KSS je 29, 47 nebo 57 mm.

UPOZORNĚNÍ

Vyobrazené zárubně zohledňují pouze nejpoužívanější provedení daného modelu. Potřebujete zárubně s bočním nebo horním nadsvětlíkem, posuvně dveře, zárubně pro stavební pouzdro nebo jiné speciální zárubně? Neváhejte nás kontaktovat se svými požadavky, rádi Vám najdeme nejvhodnější variantu.

Protipožární provedení

Tento model dodáváme také v protipožárním provedení s třídou odolnosti EI30 DP3.

zjistit více

>Ochrana prstů

Touch GUARD Plus. Nová generace ochrany proti přiskřípnutí prstů pro školy a školky.

zjistit více

Výhody

  • Snadná údržba
  • Velký výběr povrchových úprav
  • Hliníkové zárubně jsou vhodné i pro potravinářský sektor
  • Možnost dodání i protipožární provedení EI30 DP3
  • Vysoká mechanická odolnost
  • Odolný proti vlhkosti a vodě
  • Možnost seřízení dveřního křídla
  • Možnost využít prvku pro ochranu prstů Touch Guard Plus
Zárubně do roviny stěny - model KSS Do roviny stěny Model KSS

Vlastnosti produktu

Vlastnosti produktu zárubně do roviny stěny model KSS
Profilový systémKSS
Falc29, 47 a 57 mm
Tloušťka stěnymin. 71 mm pro falc 29 mm
min. 90 mm pro falc 47 mm
min. 100 mm pro falc 57 mm
Pohledová šíře zárubně40 mm z čelní falcové strany
55 mm z druhé strany
počítáno bez stínové drážky
Protipožární provedeníAno (volitelné)
Systém ochrany prstůAno (volitelné)

Řezy nejpoužívanějšími typy zárubní